54" Vent-A-Hood Designer Series Premier Magic Lung Island - JDIH454C1SS

Concave with lip styling. Click on the models for a list of our base model numbers for standard sizes; simply select the model you need. This model is available in stainless steel with standard mirror stainless trim. All Vent-A-Hood Magic Lung products are suitable for use in damp locations (outdoor applications such as a covered patio) when installed in a GFCI protected branch circuit. Recommended mounting height is 30" above the cooking surface.
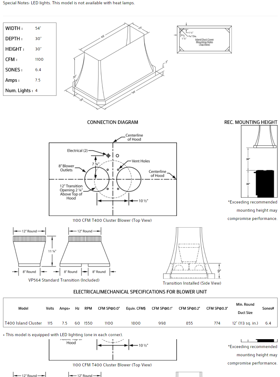
** EQUIV CFM : Because the Magic Lung® blower uses centrifugal filtration rather than conventional baffle or mesh filters, the Magic Lung® blower can handle cooking equipment with higher cubic feet per minute (CFM) requirements and can deliver equivalent CFM much more efficiently than other filtration systems. When comparing the Magic Lung® with other blower units made by other manufacturers, use the “Equivalent CFM”.
Specification


