36" Vent-A-Hood Premier Magic Lung Professional Or Standard Wall Mounted Hood - SLH30236SS

Popular contemporary design of this wall-mount hood with soft-cut corners gives an up-to-date look. Heat lamps may also be added to selected models. Click on the models for a list of our base model numbers for standard sizes; simply select the model you need, and then specify the finish (painted, stainless steel, real brass, real copper, or hammered copper). Recommended mounting height is 30" above the cooking surface. All Vent-A-Hood products are suitable for use in damp locations (outdoor applications such as a covered patio) when installed in a GFCI protected branch circuit.
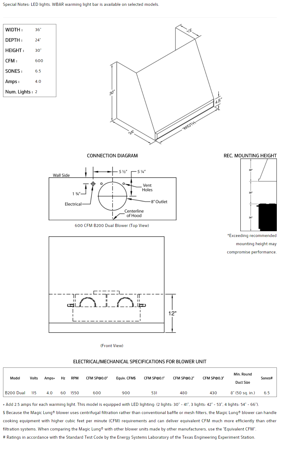
** EQUIV CFM : Because the Magic Lung® blower uses centrifugal filtration rather than conventional baffle or mesh filters, the Magic Lung® blower can handle cooking equipment with higher cubic feet per minute (CFM) requirements and can deliver equivalent CFM much more efficiently than other filtration systems. When comparing the Magic Lung® with other blower units made by other manufacturers, use the “Equivalent CFM”.
Specification


