This Euroline Pro is boldly designed to cover light residential, "commercial type" cooking equipment. To order a 27" depth, add an 'X' after 'EP' in the model number. The Euroline Pro Series with Emerald Lip is also available with a 26" wide x 14" deep top to allow for higher CFM requirements . Heat lamps are not available on this model. Click on the models for a list of our base model numbers for standard sizes; simply select the model you need, and then specify the finish (painted, stainless steel, real brass, real copper, or hammered copper). Recommended mounting height is 30" from the cooking surface. Shown with matching wall mount duct cover (sold separately), available in standard sizes for 8', 9', and 10' ceiling heights or in custom sizes. All Vent-A-Hood products are suitable for use in damp locations (outdoor applications such as a covered patio) when installed in a GFCI protected branch circuit.
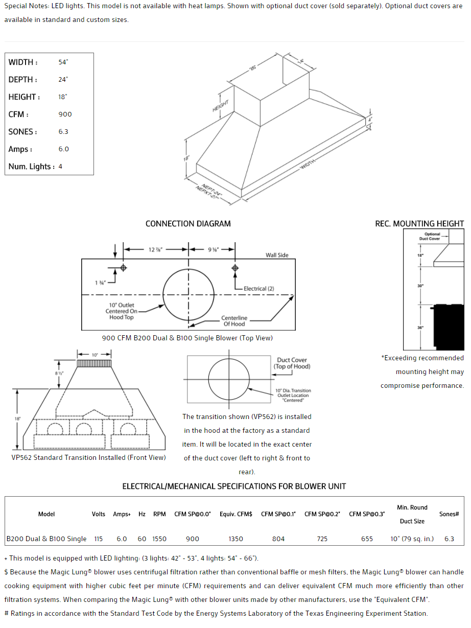
** EQUIV CFM : Because the Magic Lung® blower uses centrifugal filtration rather than conventional baffle or mesh filters, the Magic Lung® blower can handle cooking equipment with higher cubic feet per minute (CFM) requirements and can deliver equivalent CFM much more efficiently than other filtration systems. When comparing the Magic Lung® with other blower units made by other manufacturers, use the “Equivalent CFM”.
Specification



