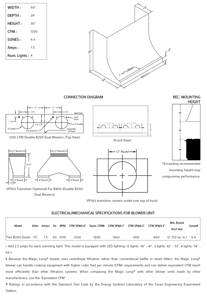
60" Vent-A-Hood Premier Magic Lung Professional Or Standard Wall Mounted Hood - DAH30460SS

$12,330.00 CAD
Literature
Premier Magic Lung® Professional/Standard Wall Mounted
Concave shape on this classic wall-mount design looks great in any kitchen. Click on the models for a list of our base model numbers for standard sizes; simply select the model you need, and then specify the finish (painted, stainless steel, real brass, real copper, or hammered copper). Recommended mounting height is 30" above the cooking surface. All Vent-A-Hood products are suitable for use in damp locations (outdoor applications such as a covered patio) when installed in a GFCI protected branch circuit.


