42" Vent-A-Hood Premier Magic Lung Professional Or Standard Wall Mounted Hood - PWVH30242SS

Premier Magic Lung® Professional/Standard Wall Mounted
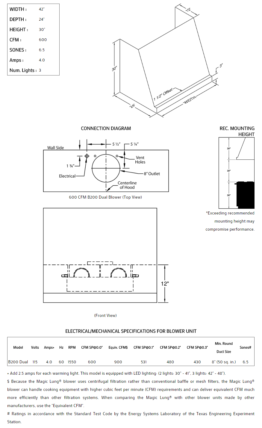
Features clean slope and defined front end. Heat lamps may also be added to selected models. Click on the models for a list of our base model numbers for standard sizes; simply select the model you need, and then specify the finish (painted, stainless steel, real brass, real copper, or hammered copper). Recommended mounting height is 30" above the cooking surface. All Vent-A-Hood products are suitable for use in damp locations (outdoor applications such as a covered patio) when installed in a GFCI protected branch circuit.


